Casa semindipendente in vendita

Vinovo, Via sestriere - Garino
€ 339.000
7 locali 7 locali
270 Mq 270 Mq
3 bagni 3 bagni

Casa semindipendente in vendita

Vinovo, Via sestriere - Garino

Descrizione annuncio

Garino è una zona comoda ai principali servizi e a tutte le vie di passaggio, trasformata parecchio positivamente nell'ultimo decennio.

La casa indipendente è stata completamente ristrutturata nel 2008, offrendo comfort moderni, ampi spazi interni ed esterni e un’ottima distribuzione dei locali.

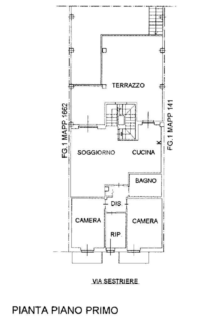
Il piano abitativo principale è il primo, dove troviamo una spaziosa zona giorno con cucina a vista e affaccio diretto sul terrazzo, ideale per pranzi e momenti di relax all’aperto.

Sullo stesso livello sono presenti due camere da letto, un ampio ripostiglio e un bagno finestrato.

Al piano superiore si apre una zona notte di grande fascino, composta da una camera matrimoniale con terrazzino privato, una spaziosa sala da bagno e una comoda cabina armadio, pensata per garantire il massimo comfort e funzionalità.

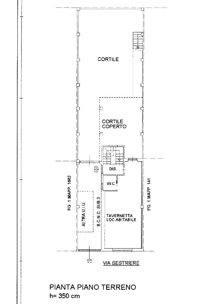
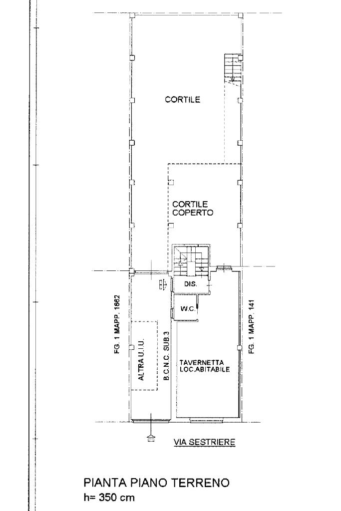
Il piano terra ospita spazi accessori molto pratici: un ampio locale adibito a dispensa e cucina estiva, un ulteriore bagno e l’ampio garage, tutti con affaccio diretto sul cortile interno completamente pavimentato, che garantisce privacy e vivibilità esterna.

A completare la proprietà vi è la cantina al piano interrato.

Tra le dotazioni troviamo infissi in vetrocamera con inferriate, impianto di condizionamento, riscaldamento a pavimento e finiture curate che rendono l’immobile pronto da vivere senza necessità di interventi.

Una soluzione ideale per chi cerca una casa funzionale, elegante e con spazi versatili, perfetta per famiglie numerose che desiderano un’abitazione completa in ogni dettaglio.

Mostra tutto

Nelle vicinanze

Trasporto pubblico Trasporto pubblico
Nichelino
Nichelino
2,0 Km
Candiolo
Candiolo
2,8 Km
Sestriere
Sestriere
90 m
Sant'Anna
Sant'Anna
100 m
Ricariche auto elettriche Ricariche auto elettriche
Nichelino Via Torino | EnelX
360 m
Nichelino Amendola | EnelX
2,1 Km
Nichelino Segre | EnelX
2,1 Km
Municipio di Nichelino | EnelX
2,6 Km
Nichelino Kennedy | EnelX
2,6 Km
Scuole Scuole
Scuola media
920 m
Elementare Papa Giovanni XXIII
1,7 Km
Istituto Comprensivo IV
2,0 Km
Elementare Marco Polo
2,5 Km
Istituto di Istruzione Superiore James Clerk Maxwell
2,6 Km
Farmacia Farmacia
Farmacia
190 m
Farmacia Della Stazione
2,1 Km
Farmacia Dallocchio
2,7 Km
Farmacia Largo Giusti
2,8 Km
Farmacia Salus
3,0 Km
Ospedali Ospedali
Croce Verde
3,0 Km
Supermercati Supermercati
Bennet
710 m
Coop
2,1 Km
docks
2,7 Km
Lidl
2,7 Km
Ekom
2,8 Km
Negozi Negozi
Kiabi
650 m
Negozi
910 m
Intimo Corinne
2,5 Km
Bar Bar
Bar
880 m
Centro Comitato Castello
2,1 Km
Caffè Villa Reale
2,7 Km
SARA S.a.S.
2,9 Km
Ristoranti Ristoranti
RoadHouse Nichelino
760 m
Churrascaria
930 m
Ristoranti
1,5 Km
Ristorante Mistral
2,1 Km
Ristorante Sabaudia
2,6 Km
Mostra tutto

Caratteristiche

Rif.:
61122713
Piano:
Su più livelli di 4
Totale piani:
4
Box:
1
Posti auto:
2
Balconi:
2
Mostra tutto
Prezzo Prezzo
€ 339.000
Rata mutuo Rata mutuo
€ 1.597 / mese
Spese annue Spese annue
€ 0
Proponi il tuo prezzoProponi il tuo prezzo

Classe Energetica

D
D
D
D
D
D
D
D
D
EP invernale del fabbricato:
EP estiva del fabbricato:
Anno di costruzione:
1960
Riscaldamento:
Autonomo
Tipo impianto:
A pavimento
Tipo alimentazione:
Metano

Ti interessa visionare l'immobile?

Fissa un appuntamento  Fissa un appuntamento

Richiedi informazioni

Clicca su Leggi per aprire l'informativa
* Questi campi sono obbligatori

Calcola il tuo mutuo

Semplice e senza impegno
Anticipo

( % )
Mutuo

( % )

pochi semplici passi

inserisci i tuoi dati
Questionario completato
Grazie per aver richiesto un appuntamento senza impegno con un nostro Consulente del Credito e Assicurativo.

Hai inserito correttamente tutti i dati necessari e a breve riceverai una e-mail con un link da convalidare per inviare i tuoi dati.
Affiliato
Immobiliare Vinovo D.I.
Via Marconi, 14/9 b 10048 Vinovo (TO)

Il nostro staff


  • Roberto Titone
    Affiliato

  • Federica Gendusa
    Coordinatrice

  • Simone Salpietra
    Collaboratore

  • Chiaretta Stravato
    Collaboratrice
Via Marconi, 14/9 b 10048 Vinovo (TO)
Zona: Vinovo
Mostra su mappa
Orari: lunedì/venerdì h 9.00/12.30 - 15.00/20.00; sabato 9.00/13.00; sabato pomeriggio e domenica su appuntamento.
Affiliato
Immobiliare Vinovo D.I.
Via Marconi, 14/9 b 10048 Vinovo (TO)

2026 Tecnocasa Franchising S.p.A. - P. IVA 08365160152 - Via Monte Bianco 60/A 20089 Rozzano (MI). Ogni agenzia ha un proprio titolare ed è autonoma. Privacy policy | Policy utilizzo | Cookie policy