Villa a schiera d'angolo in vendita

Vinovo, Via M.Buonarroti - Tetti Rosa
€ 435.000
9 locali 9 locali
290 Mq 290 Mq
3 bagni 3 bagni

Villa a schiera d'angolo in vendita

Vinovo, Via M.Buonarroti - Tetti Rosa

Descrizione annuncio

Nel cuore della tranquilla e ben collegata zona residenziale di Tetti Rosa, all’interno di un villaggio chiuso con accesso riservato ai soli residenti e caratterizzato da spese condominiali contenute, si trova questa splendida villa indipendente su tre lati, circondata da giardino privato, terrazzo e orto.
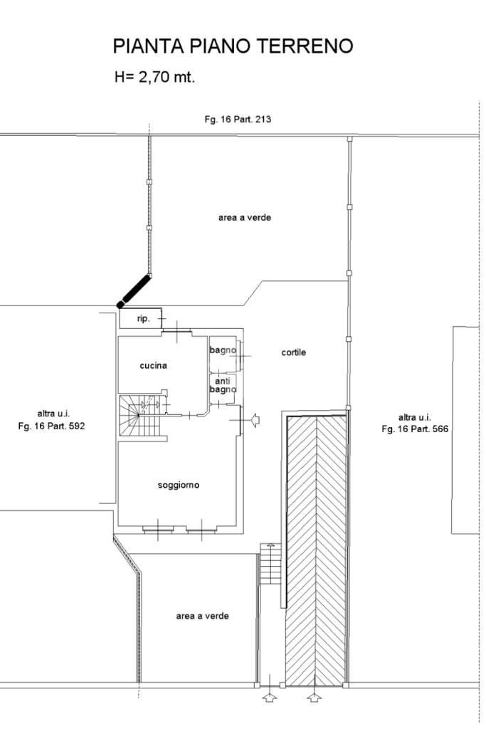
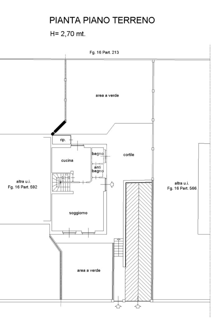
La casa accoglie con ambienti ampi e luminosi, pensati per la vita quotidiana di una famiglia che desidera spazio e comfort. Al piano terra il salone, arioso e conviviale, dialoga con la cucina in maniera molto funzionale; completa il livello un primo servizio ristrutturato nel 2016. Salendo al piano superiore si sviluppa la zona notte, composta da tre camere da letto generose e due bagni entrambi finestrati e dotati di doccia: uno rifatto nel 2023 con moderna doccia walk-in, l’altro nel 2016. Una distribuzione ideale per famiglie numerose o per chi desidera ambienti ben organizzati e indipendenti.
La mansarda, suddivisa in due stanze oltre al servizio, rappresenta uno spazio prezioso e versatile: perfetta come studio, area relax, zona hobby o camere aggiuntive.

Il piano seminterrato sorprende per ampiezza e funzionalità: qui troviamo una taverna con camino, ideale per feste e momenti conviviali, un ampio box auto triplo, cantina, centrale termica e lavanderia. Non mancano ripostigli strategici e persino una pratica area ecologica ricavata nell’intercapedine con accesso diretto dalla rampa.
Negli ultimi anni la proprietà è stata oggetto di importanti migliorie che ne aumentano comfort ed efficienza: nel 2023 sono stati installati un impianto fotovoltaico da 4,5 kW con accumulo da 8 kW, una nuova caldaia ibrida Daikin con pompa di calore e addolcitore, climatizzatori su tutti i livelli fuori terra e nuovi serramenti in legno con vetrocamera di ultima generazione. Nello stesso anno sono stati rifatti marciapiedi e terrazzo, mentre la pavimentazione dell’interrato è stata rinnovata nel 2016. Il riscaldamento è autonomo e frazionato per piano, permettendo una gestione ottimale dei consumi.
Come ciliegina sulla torta ricordiamo la dotazione di un impianto di antifurto volumetrico e perimetrale con video sorveglianza, oltre alle inferriate.

Mostra tutto

Nelle vicinanze

Trasporto pubblico Trasporto pubblico
Candiolo
Candiolo
2,0 Km
Vinovo (fraz.Tetti Rosa)
Vinovo (fraz.Tetti Rosa)
240 m
Vinovo (P.za Rei)
Vinovo (P.za Rei)
1,0 Km
Ricariche auto elettriche Ricariche auto elettriche
Piobesi Galimberti | ENELX FAST
2,5 Km
Nichelino Via Torino | EnelX
2,6 Km
Scuole Scuole
Scuole
920 m
Scuola Primaria "Don Milani"
940 m
Scuola Secondaria di Primo Grado "Gioanetti"
960 m
Scuola secondaria di 1° grado "Giovanni XXIII"
1,9 Km
Scuola media
2,0 Km
Farmacia Farmacia
Farmacia
1,0 Km
Ospedali Ospedali
Croce Verde
1,3 Km
Supermercati Supermercati
Bennet
2,9 Km
Negozi Negozi
Negozi
1,6 Km
Kiabi
2,9 Km
Bar Bar
Bar
2,1 Km
Mitho
2,6 Km
Ristoranti Ristoranti
Ristorante Mistral
200 m
Churrascaria
1,8 Km
Agriturismo L'Orto della Strada Antica
2,5 Km
Ristoranti
2,7 Km
Mostra tutto

Caratteristiche

Rif.:
61179360
Piano:
Su più livelli di 4
Totale piani:
4
Box:
3
Balconi:
2
Camere da letto:
3
Mostra tutto
Prezzo Prezzo
€ 435.000
Rata mutuo Rata mutuo
€ 2.051 / mese
Spese annue Spese annue
€ 250
Proponi il tuo prezzoProponi il tuo prezzo

Classe Energetica

C
C
C
C
C
C
C
C
C
EP invernale del fabbricato:
EP estiva del fabbricato:
Anno di costruzione:
1984
Riscaldamento:
Autonomo
Tipo impianto:
A radiatori
Tipo alimentazione:
Metano

Ti interessa visionare l'immobile?

Fissa un appuntamento  Fissa un appuntamento

Richiedi informazioni

Clicca su Leggi per aprire l'informativa
* Questi campi sono obbligatori

Calcola il tuo mutuo

Semplice e senza impegno
Anticipo

( % )
Mutuo

( % )

pochi semplici passi

inserisci i tuoi dati
Questionario completato
Grazie per aver richiesto un appuntamento senza impegno con un nostro Consulente del Credito e Assicurativo.

Hai inserito correttamente tutti i dati necessari e a breve riceverai una e-mail con un link da convalidare per inviare i tuoi dati.
Affiliato
Immobiliare Vinovo D.I.
Via Marconi, 14/9 b 10048 Vinovo (TO)

Il nostro staff


  • Roberto Titone
    Affiliato

  • Federica Gendusa
    Coordinatrice

  • Simone Salpietra
    Collaboratore

  • Chiara Stravato
    Collaboratrice
Via Marconi, 14/9 b 10048 Vinovo (TO)
Zona: Vinovo
Mostra su mappa
Orari: lunedì/venerdì h 9.00/12.30 - 15.00/20.00; sabato 9.00/13.00; sabato pomeriggio e domenica su appuntamento.
Affiliato
Immobiliare Vinovo D.I.
Via Marconi, 14/9 b 10048 Vinovo (TO)

2026 Tecnocasa Franchising S.p.A. - P. IVA 08365160152 - Via Monte Bianco 60/A 20089 Rozzano (MI). Ogni agenzia ha un proprio titolare ed è autonoma. Privacy policy | Policy utilizzo | Cookie policy